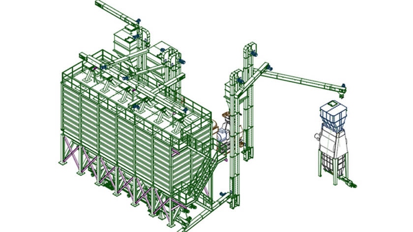
Προϊόντα στο έργο:
- Σιλό εργασίας τετραγωνικής διατομής τύπου CQS1
- Δοσομετρικοί κοχλίες τύπου PSCE250
- Ζυγοχοάνη PHS60 1 τόνου παρτίδας
- Αλυσομεταφορείς τύπου PCC60
- Καδοφόροι αναβατήρες τύπου PBE130
- Κοχλιομεταφορείς τύπου PSCU200 και PSCU250
- Δίοδοι τύπου PDV200D και PDV200S
- Σύρτες τετραγωνικής διατομής τύπου PQS300PN

























